HOSPITALITY PROJECTS
SENTIDO: A GLOBAL DINING EXPERIENCE
Jose Andres’ ThinkFoodGroup plans to introduce a new restaurant concept to the Tribeca neighborhood while striving ”To Change the World Through the Power of Food.” Sentido is uniting the community and stimulating the local economy by combining two of the restaurant groups concepts into one location to create a unique dining experience.
The goal of the restaurant is not only to create an unforgettable culinary experience at every price point, but also give back to the community and the world while incorporating and promoting sustainability through the food served and overall restaurant design.
The goal of the restaurant is not only to create an unforgettable culinary experience at every price point, but also give back to the community and the world while incorporating and promoting sustainability through the food served and overall restaurant design.
PROJECT DETAILS
Site: 319 Greenwich Street
New York, NY
Size: 5,000 SQ. FT.
Spring 2021
Graduate Contract Studio Project
Programs: Revit, Sketchup, Photoshop
*Final renderings produced by team member
Site: 319 Greenwich Street
New York, NY
Size: 5,000 SQ. FT.
Spring 2021
Graduate Contract Studio Project
Programs: Revit, Sketchup, Photoshop
*Final renderings produced by team member
SOLUTION
The restaurant offers two different experiences to customers, with an affordable “FastGood” option on the ground level that offers a very public, fast-paced experience. This level represents Jose’s belief that delicious, nourishing food should be accessible to all individuals, directly addressing the issue of food insecurity in NYC. The experience at Sentido: Underground varies greatly from the food and overall experience, as the space is intended to push the boundaries of a restaurant, while offering a romantic, mysterious experience for luxury dining. The pairing of these two concepts offers a balance between the community needs and the dining experiences Jose offers in his many restaurants around the world.
The restaurant offers two different experiences to customers, with an affordable “FastGood” option on the ground level that offers a very public, fast-paced experience. This level represents Jose’s belief that delicious, nourishing food should be accessible to all individuals, directly addressing the issue of food insecurity in NYC. The experience at Sentido: Underground varies greatly from the food and overall experience, as the space is intended to push the boundaries of a restaurant, while offering a romantic, mysterious experience for luxury dining. The pairing of these two concepts offers a balance between the community needs and the dining experiences Jose offers in his many restaurants around the world.
CONCEPT
Sentido offers a multi-sensory experience where guests are constantly engaged with their surroundings through the five senses. The sights and sounds of the surrounding neighborhood support the fast-paced environment on the ground level, and these senses are utilized in a more secretive method throughout the underground areas. Sight creates one’s first impression of the space, while sound coincides with one’s initial perception of the surroundings. Taste and smell assist with establishing a connection to place and creating memory driven experiences. Materiality and textures play on the sense of touch, as the selected materials support the concept of mystery and intrigue.
Sentido offers a multi-sensory experience where guests are constantly engaged with their surroundings through the five senses. The sights and sounds of the surrounding neighborhood support the fast-paced environment on the ground level, and these senses are utilized in a more secretive method throughout the underground areas. Sight creates one’s first impression of the space, while sound coincides with one’s initial perception of the surroundings. Taste and smell assist with establishing a connection to place and creating memory driven experiences. Materiality and textures play on the sense of touch, as the selected materials support the concept of mystery and intrigue.
GROUND LEVEL
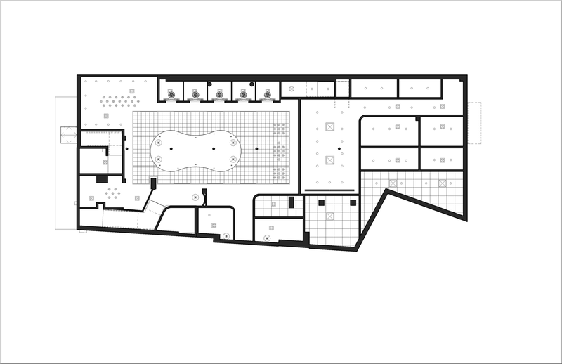
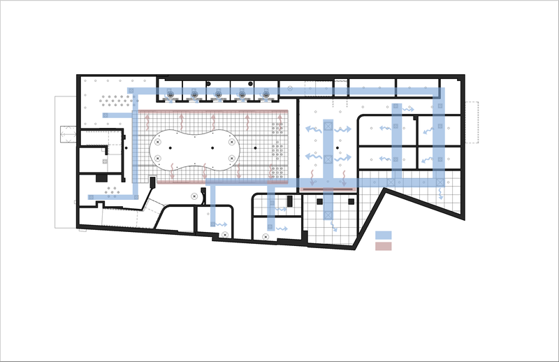
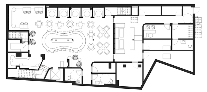
UNDERGROUND CELLAR

Ground Level Reflected Ceiling Plan

Cellar Reflected Ceiling Plan

Cellar Mechanical Diagram

Ground Level Mechanical Diagram

Ground Level Flexible Seating

Ground Level Booth

Cellar Level Booth

Cellar Level Lounge Seating