CONSTRUCTION DOCUMENTS AND DRAFTING
Technical hand drafting and computer drafting to create documents indicating design skills and principles. Construction is further studied through the 3D development of a wood-frame construction house.















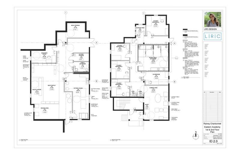
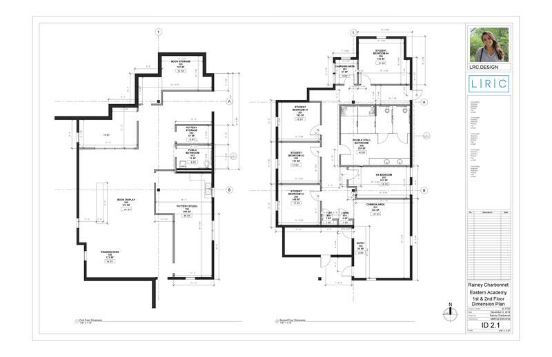
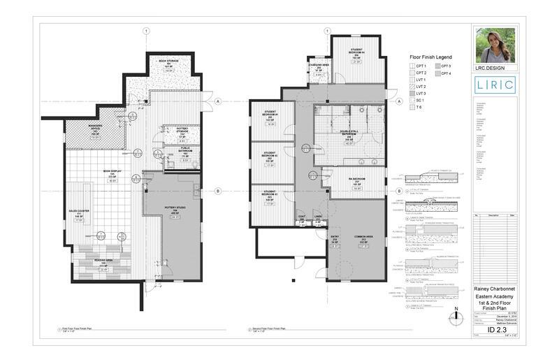
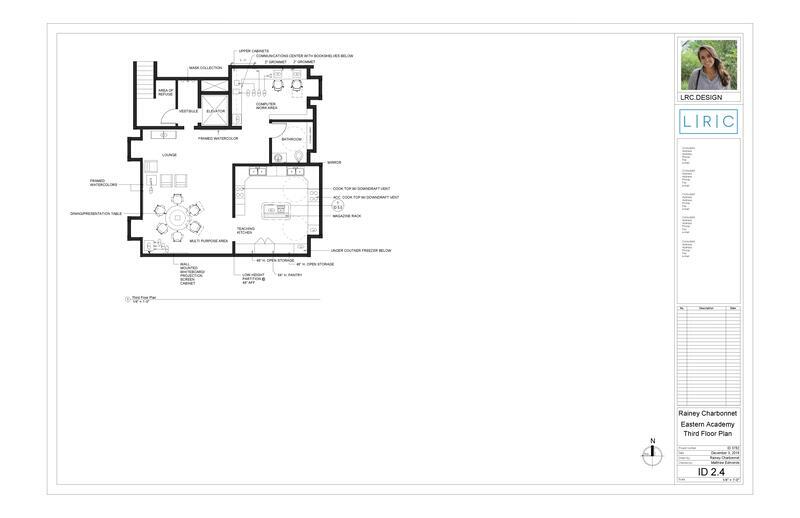
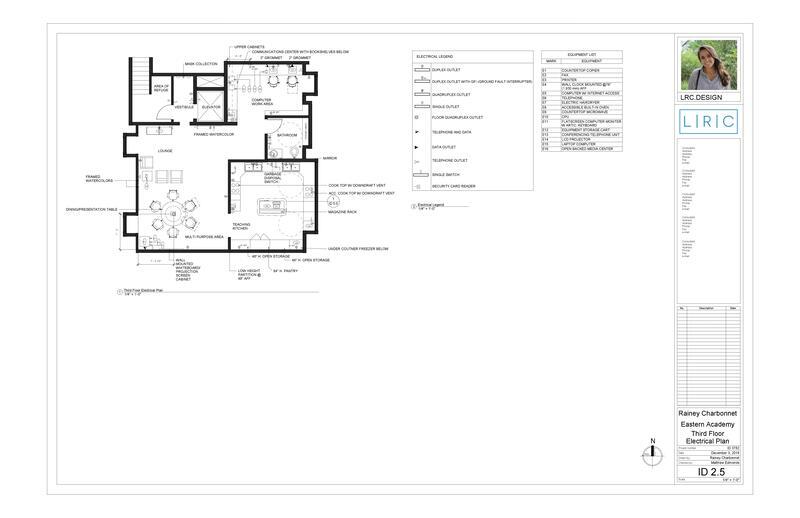
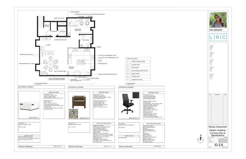
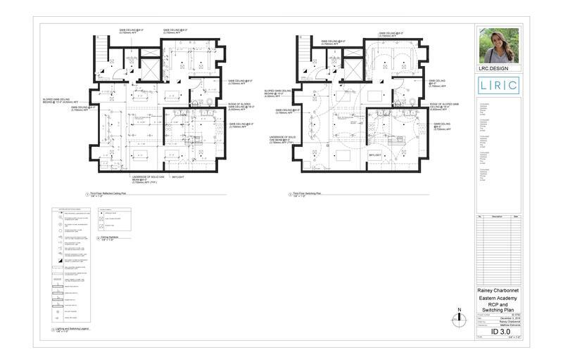
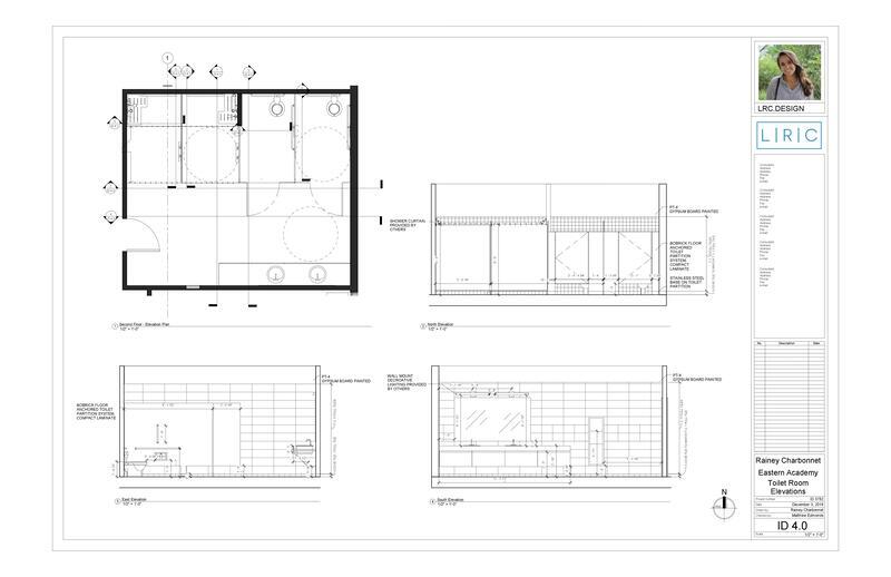
This project includes a set of construction documents created from a past NCIDQ Practicum that implements critical steps within the design process to create a final presentation. The set includes floor plans, dimensioned floor plans, finish floor plans, elevations, an RCP and switching plan, electrical plan, furniture plans, and millwork details. In addition, the bubble and blocking process is diagrammed within the set as part of the programming throughout the assignment.
Programs: Revit
Programs: Revit






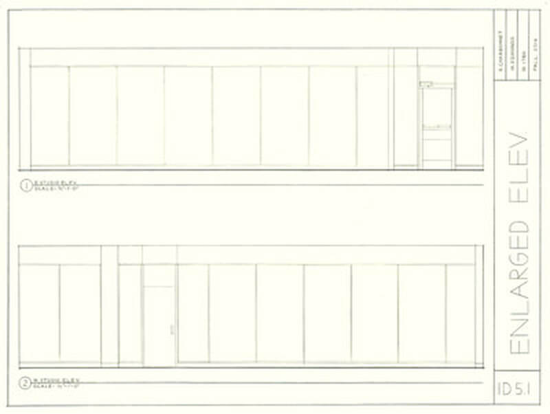
Final project for ID 1780 Technical Drawing that included replicating a floor plan and room elevations at different scales. All drawings are hand drafted and drawn to scale, including oblique drawing.
A model displaying knowledge and understanding of the structural elements of a light wood framing construction project. The model contains all necessary requirements for a full sized light wood framing home.